Ovaj proračun je namenjen pre svega svakodnevnim sistemima, gde su važni balans zvuka, pouzdanost i stabilan rad.
Ne radimo proračune za zidove, proračune sa garancijom određenog broja decibela, niti šaljive (for fun) proračune.
Važno je razumeti da se visok rezultat na senzoru ne postiže samo time što ćete napraviti kutiju tačno po proračunu. Konačan rezultat uvek zavisi od kvaliteta izrade, podešavanja i iskustva. Proračun ne garantuje brojku, ali predstavlja odličnu polaznu osnovu za izradu efikasnog ozvučenja.
Za proračun je potrebno dostaviti:
-
količinu, model i impedansu subwoofera
-
količinu i model pojačala
-
debljinu materijala kutije
-
marku, model, godinu proizvodnje i tip karoserije automobila
-
maksimalno dozvoljene dimenzije kutije
(proverite da kutija sa tim dimenzijama može da prođe kroz otvor gepeka — posebno važno za limuzine) -
zadatak ozvučenja (svakodnevno, vetar, širok spektar zvuka, takmičarsko i dr.)
-
željenu frekvenciju podešavanja / pik
-
koji tip porta preferirate — cevasti (round port) ili slot port
Proračun koji možemo da uradimo:
-
klasične bass-reflex (fazno inverterske) kutije
-
zatvorene kutije (sealed)
-
četvrtotalasni rezonatori (quarter-wave)
-
expo kutije
-
ruporne / horn kutije
Preporuke za samostalnu izradu:
-
da imate pristup ubodnoj testeri (jigsaw)
-
šrafciger/odvijač ili aku–šrafilicu
-
mogućnost da naručite materijal odmah sa uslugom sečenja
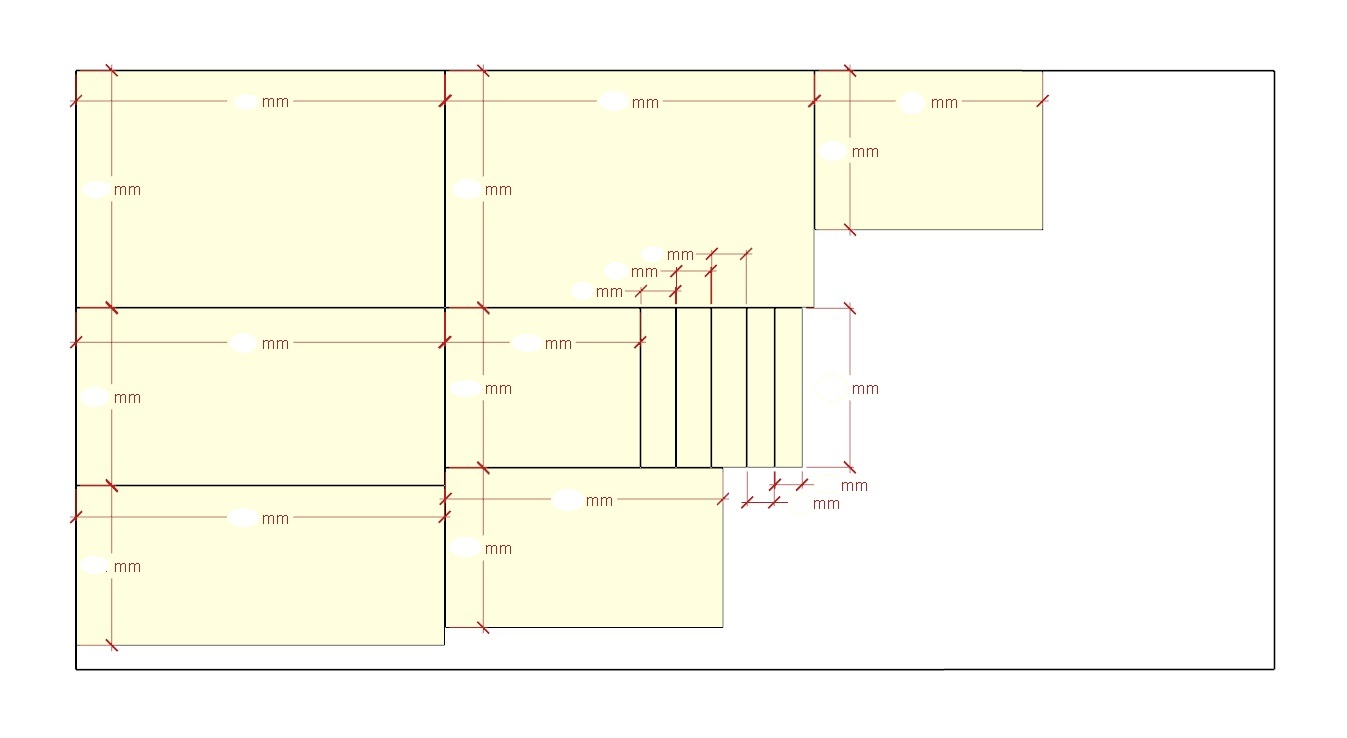
Primer gotovog proračuna nalazi se u fotografijama proizvoda.
Proces naručivanja:
Nakon što dostavite sve neophodne informacije, radimo preliminarni proračun, usklađujemo dimenzije i saopštavamo cenu.
Nakon uplate radimo kompletan proračun.
Rok izrade: od 2 do 5 radnih dana.
Po zahtevu možemo pripremiti i mapu sečenja (cut sheet) — bez dodatne naplate.
